Modern Mediterranean Oasis

Class: ART 251 - Introduction to Interior Design

Professor: James Brown

Date: Spring 2023

Programs Used: AutoCAD, SketchUp & Enscape

This single-story home is inspired by modern Mediterranean design to create a comfortable and inviting space. The home features white plaster walls, arch details, and light blue trim on the windows and doors. The house and landscape are terraced to have 3 levels. The main house features 3 bedrooms and 2 bathrooms along with an open concept living and dining space. The main house has access to the garage as well as a wraparound covered porch and a multipurpose gym or band room. The second terrace features a pool, sundeck and pool house with a sauna, powder room and outdoor shower. The last terrace features an outdoor kitchen and dining area as well as the potential for a garden and solar panel area. The home is designed to promote a flow between the indoor and outdoor spaces and feel like a luxurious getaway in your own home.

Site Plan

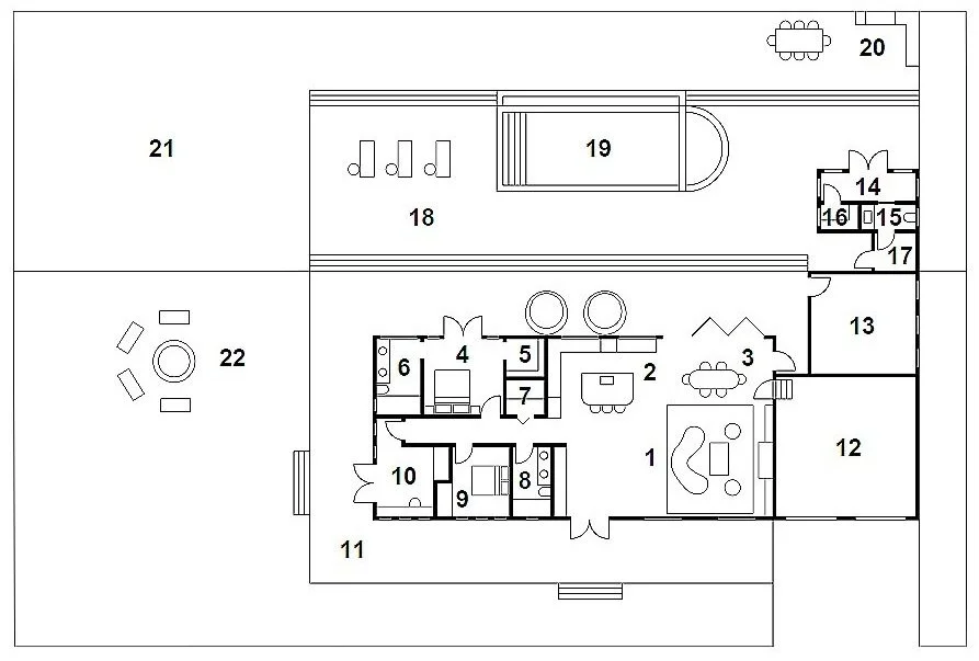
Floor Plan

Floor Plan Key

Northeast Exterior Perspective

North Exterior Perspective

Kitching, Living and Dining View 1

Kitchen, Living and Dining View 2

Master Bedroom View 1

Master Bedroom View 2

Master Bathroom View 1

Master Bathroom View 2

Guest Bedroom

Guest Bathroom

Office

Laundry Room

Southwest Exterior Perspective

Sun Deck and Pool

Outdoor Kitchen and Dining

Fire Pit

Previous
Previous

Minimalist Kitchen

Next
Next

Isolation and Rejuvenation